Vonkajšie žalúzie Z70 - kľuka
Vonkajšia žalúzia Z70 - kľuka
Štandardné prevedenie
- hliníkové lamely, tvar Z, šírka 70 mm, hrúbka 0,42 mm
- zaválcovaný tesniaci profil - znižuje hluk
- kovové vodiace trne
- nastrelené háčiky pre rebríček
- jednostranné naklápenie lamel
- naklápení lamel 90°
- ovládanie kľukou (strieborný elox)
- prechod kľuky 45°/90°, dĺžka 500 mm (6 hrán)
- horný profil 56x58 mm z pozinkovanej oceli
- držiaky horného profilu
- spodný profil z extrudovaného hliníku
- vodiace profily z extrudovaného hliníku
- držiaky vodiaceho profilu
- textilna páska 8 mm
- rebríček s kevlarom
- štandardný kotviaci materiál
Tvar lamely žalúzie Z70
Vonkajšia žalúzia Z70 - motor
základná schéma
Vonkajšia žalúzia Z70 - kľuka
základná schéma

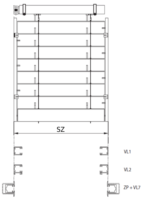
Rozmery žalúzie
Základné rozmery žalúzie
Na obrázku
SZ = šírka žalúzie
VZ =výška žalúzie
VL = výška vodiacej lišty
DL = dĺžka lamely
O = odsadenie osi žalúzie od rámu okna
Zameranie šírky žalúzie
Spôsob zamerania šírky žalúzie ovplyvňuje ako bude osadená žalúzia. Na výber ponúkame
- do otvoru (špalety) - vodiaca lišta VL1
- na rám okna - vodiaca lišta VL2
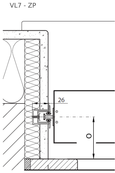
- do zateplenia - vodiaca lišta VL7, vodiaca lišta VL7 + zápustné puzdro ZP
Osadenie žalúzie ovplyvňuje, aký typ vodiacej lišty bude použitý
Na obrázku
SZ = šírka žalúzie
VL1 = vodiaca lišta typ VL1
VL2 = vodiaca lišta typ VL2
ZP + VL7 = zápustné puzdro ZP + vodiaca lišta typ VL7
Poznámka:
Pri použití VL1 a VL2 bude lamela užšia o 25mm z každej strany, než je objednávaný rozmer žalúzie.
Pri použití VL7 bude lamela užšia o 7 mm z každej strany, než je objednávaný rozmer žalúzie.
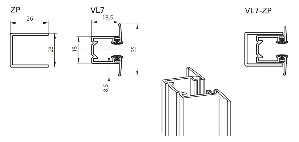
Typy vodiacich líšt
do otvoru (špalety)
Používa sa pri kotvení vodiacej lišty do boku (špalety), priamym priskrutkovaním. Skrutka sa vedie skrz hliníkový profil. Pri motáži vhodným podložením podložiek dbajte na to, aby vodiace lišty boli vertikálne uložené a vzájomne rovnobežné. Musí byť dodržaná aj celková vzdialenosť na vonkajších okrajoch vodiacich líšt VL1, ktorá sa musí zhodovať s objednanou šírkou žalúzie.
Osadenie vodiacej lišty musí byť vo vzdialenosti od rámu okna minimálne 65mm
na rám okna
Používa sa pri kotvení vodiacej lišty na rám okna. K vodiacim lištám sú pribaľované aj upevňovacie konzoly. Konzola sa nasunie do drážky vodiacej lišty a následne sa priskrutkuje o rám okna. Pri motáži dbajte na to, aby vodiace lišty boli vertikálne uložené a vzájomne rovnobežné. Musí byť dodržaná aj celková vzdialenosť na vonkajších okrajoch vodiacich líšt VL2, ktorá sa musí zhodovať s objednanou šírkou žalúzie.
Osadenie vodiacej lišty musí byť vo vzdialenosti od rámu okna minimálne 65mm
zapustená do zateplenia
Používa sa pri osadení do zateplenia a kotvení vodiacej lišty do boku (špalety). V zateplení vytvorte drážku pre zápustné puzdro ZP. Osaďte zápustné puzdro ZP do vytvorenej drážky a upevnite ho zalepením napr. PUR penou. Do zápustného pudra nasaďte vodiacu lištu VL7 a priskrutkujte k zápustnému puzdru. Skrutka sa vedie skrz hliníkový profil. Musí byť dodržaná celková vzdialenosť na zateplení (špalety), ktorá sa musí zhodovať s objednanou šírkou žalúzie. Pri motáži dbajte na to, aby vodiace lišty VL7 boli po osadení vertikálne uložené a vzájomne rovnobežné. Ak už máte osadené krycie plechy a zápustné puzdro, objednajte iba vodiacu lištu VL7. Šírka žalúzie je šírka otvoru (na špalete) po ukončení fasády a jej nátere.
Osadenie vodiacej lišty musí byť vo vzdialenosti od rámu okna minimálne 65mm.
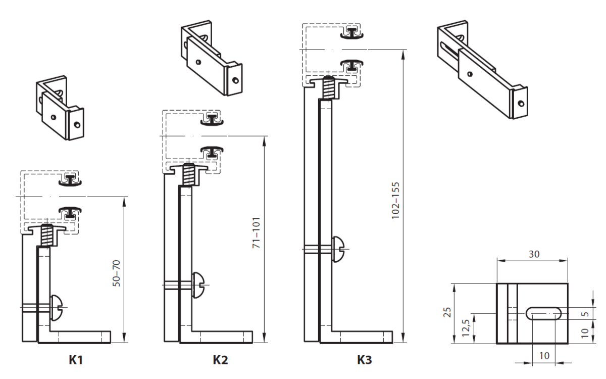
Uchytenie vodiacích líšt VL2 na rám okna pomocou konzoly K1, K2, K3
Pri uchytení žalúzie s vodiacou lištou VL2 na rám okna pomocou konzoly k dispozícii 3 veľkosti konzol a to K1, K2, K3. Výber závisí od hrúbky zateplenia , veľkosti špalety, alebo pre vytvorenie miesta pre siete proti hmyzu.
Veľkosti jednotlivých konzol

Typy montáži vodiacich líšt

Montáž vodiacej lišty VL1

Montáž vodiacej lišty VL2

Montáž vodiacej lišty VL7 so zápustnym puzdrom ZP

Montáž vodiacej lišty VL7 so zápustnym puzdrom
ZP a konzolami K1, K2, K3
Doporučené množstvo konzol
| Výška žalúzie VZ v mm | Množstvo konzol pre vodiace lišty |
| 500 - 1600 | 2 páry |
| 1600 - 2600 | 3 páry |
| 2600 - 3600 | 4 páry |
| 3600 - 4600 | 5 páry |
| 4600 - 5000 | 6 páry |
Zameranie výšky žalúzie
Výška paketu (nábalu)
Výška paketu (nábalu) povytiahnutí lamiel je závisla od celkovej výšky žalúzie. Tento údaj je pre Vás veľmi dôležitý, pretože Vám určuje o koľko Vám zoberie zo svetlosti okna pri priznaných krycích plechoch, respektíve o koľko musí byť vyššia žalúzia pri zaomietacích plechoch.
UPOZORNENIE: Pri zaomietacích krycích plechoch k výške otvoru pre žalúzie pripočítajte výšku krycieho plechu.
VZ - výška žalúzie
VKP - výška krycieho plechu
VNBL - výška nábalu
VZ = určuje VNBL podľa tabuľky
VKP = VNBL + 20mm
Výška paketu (nábalu) pre Z70 - tabuľka
| Výška žalúzie VZ od (mm) | Výška žalúzie VZ do (mm) | Výška paketu VNBL (mm) | Výška plechu VKP (mm) |
| 400 | 1000 | 170 | 190 |
| 1001 | 1250 | 180 | 200 |
| 1251 | 1500 | 200 | 220 |
| 1501 | 1750 | 210 | 230 |
| 1751 | 2000 | 230 | 250 |
| 2001 | 2250 | 250 | 270 |
| 2251 | 2500 | 260 | 280 |
| 2501 | 2750 | 280 | 300 |
| 2751 | 3000 | 300 | 320 |
| 3001 | 3250 | 320 | 340 |
| 3251 | 3500 | 330 | 350 |
| 3501 | 3750 | 350 | 370 |
| 3751 | 4000 | 370 | 390 |
| 4001 | 4250 | 390 | 410 |
| 4251 | 4500 | 400 | 420 |
| 4501 | 4750 | 420 | 440 |
| 4751 | 5000 | 440 | 460 |
Výška paketu (nábalu) pre Z70 schéma
Krycie plechy
Priznaný krycí plech KPP1.
Zaomietací krycí plech KP1
Držiaky krycích plechov
Držiak krycieho plechu DK5 dodávaný do hľbky krycieho plechu 150mm
Držiak krycieho plechu DK5 dodávaný do hľbky krycieho plechu od 150mm - do 200mm
Doporučené množstvo držiakov krycích plechov
| Šírka žalúzie SZ v mm | Množstvo držiakov krycích plechov |
| 500 - 1600 | 2 |
| 1610 - 2400 | 3 |
| 2410 - 3200 | 4 |
| 3210 - 4000 | 5 |
| 4010 - 4500 |
Nástavce držiakov ku krycím plechom
Držiakov horného profilu
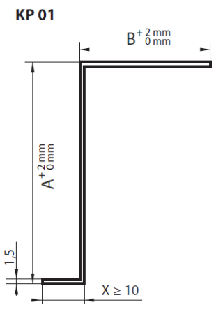
Výrobné tolerancie
Prehľad tolerancí slúži na stanovenie prípustných hraníc zhody a nezhody výrobku.
Vonkajšie žalúzie sú zložené z množstva kovových a textilných elementu s rôznymi materiálovými vlastnosťami a výrobnými toleranciami.
Vonkajšie žalúzie sú produktom, ktorý je neustále vystavovaný vplyvu počasia predovšetkým teploty, vlhkosti, poveternostným vplyvom a špiny. Tieto majú veľký
vplyv na funkciu a vzhľad vonkajšie žalúzie.
Základné funkcie žalúzie sú vždy splnená, keď sa dajú lamely otáčať a keď v uzavretom stave nesvieti svetlo priamo na zasklenie.
Odchýlky od tabuľkových hodnôt môžu byt v určitom rozsahu našimi technikmi skorigované.
Prosím majte na vedomie:
Uvedené limity sú vytvorené na základe aktuálneho stavu techniky, príslušných technických noriem a na základe dlhoročné skúsenosti.
Povolené tolerancie výrobných rozmerov nájdete v následovnej tabuľke. Tieto tabuľkové hodnoty sú platné len pre vonkajšie žalúzie.
| Vlastnosť | Popis odchýlky | Tolerancia |
|
Šírka žalúzie |
Šírka žaúzie do 2000 mm Šírka žalúzie od 2000 mm do 4000 mm Šírka žalúzie nad 4000 mm |
max. 3mm max. 4mm max. 5mm |
|
Výška žalúzie
|
Výška žalúzie do 1500 mm Výška žalúzie od 1500 mm do 2500 mm Výška žalúzie nad 2500 mm |
max. 4 mm max. 6 mm max. 10 mm |
|
Výška paketu
|
Paket do výšky 2500mm Paket vyšší jak 2500mm |
+/-0,5% výšky VŽ +/-1 % výšky VŽ |
| Diferencia výšky paketov | Mezi jednotlivými paketami rovnakej výšky | max. 20 mm |
|
Paralelnosť paketu v hornej pozícií
|
Výškový rozdiel paketu lamiel pri výške do 3500 mm Výškový rozdiel paketu lamiel pri výške nad 3500 mm |
+/- 30 mm +/- 40 mm |
|
Tolerancie pre lamely
|
Povolená odchýlka pre skrútenie a pozdĺný priehyb - šírka lamely do 1 m Povolená odchýlka pre skrútenie a pozdĺný priehyb - šírka lamely do 2 m Povolená odchýlka pre skrútenie a pozdĺný priehyb - šírka lamely do 3 m Povolená odchýlka pre skrútenie a pozdĺný priehyb - šírka lamely do 4 m Povolená odchýlka pre skrútenie a pozdĺný priehyb - šírka lamely do 5 m Povolená odchýlka pre priečný priehyb - šírka lamely do 1 m Povolená odchýlka pre priečný priehyb - šírka lamely do 2 m Povolená odchýlka pre priečný priehyb - šírka lamely do 3 m Povolená odchýlka pre priečný priehyb - šírka lamely do 4 m Povolená odchýlka pre priečný priehyb - šírka lamely do 5 m |
max. 3 mm max. 4 mm max. 5 mm max. 6 mm max. 7 mm max. 2 mm max. 3 mm max. 4 mm max. 5 mm max. 6 mm |
|
Krivosť spodnej lišty
|
V hornej pozícii pri šírke viac ako 800 mm V hornej pozícii pri šírke menej ako 800 mm V dolnej pozícii |
max. 15 mm max. 30 mm +/- 15 mm/m |
|
Šikmý chod spodnej lišty
|
Odchýlka od rovnomernosti do výšky 3500 mm Odchylka od rovnomernosti nad výšku 3500 mm |
+/- 10 mm +/-15 mm |
| Šikmý chod paketu | Vplietanie rebríčka mezi lamely | je prípustné |
| Doba chodu paketu | Nepretržitá doba chodu motoru | max. 4 min |
| Tex (páska) | V priebehu chodu viditelné vloženie texu (pásky) na lamelách | je prípustné |
|
Priepustnos5 svetla - pod+la CSN EN 14501
|
V uzavretom stave nie je žiadny horizontálny presvit z vonku dovnútra V uzavretom stave nie je žiadny horizontálny presvit z vnútra vonku |
je prípustné je prípustné |
|
Akustika
|
Zvuky z chodu a vypínacie zvuky su dané technickým riešením dány technickým rešením. Hluk podľa sily vetra a polohy lamel. |
je prípustné je prípustné |
| Tolerancia pre krycie plechy | Pre zadávané hodnoty | +/- 2 mm |













